Villa singola in Vendita a Carloforte
Zona: Carloforte fuori paese/Outside town
Tipologia: Villa unifamiliare indipendente panoramica.
Localizzazione: Carloforte, Isola di S. Pietro, sud - ovest della Sardegna.
La villa si trova in una delle più’ belle zone dell’isola, all'interno di una residenza privata composta di otto ville, realizzata nel rispetto della tradizionale architettura mediterranea.
Di nuova costruzione, è immersa nel verde, circondata da un giardino di 3000 mq ricco di macchia mediterranea. Si affaccia sul mare con un incredibile e suggestivo panorama.
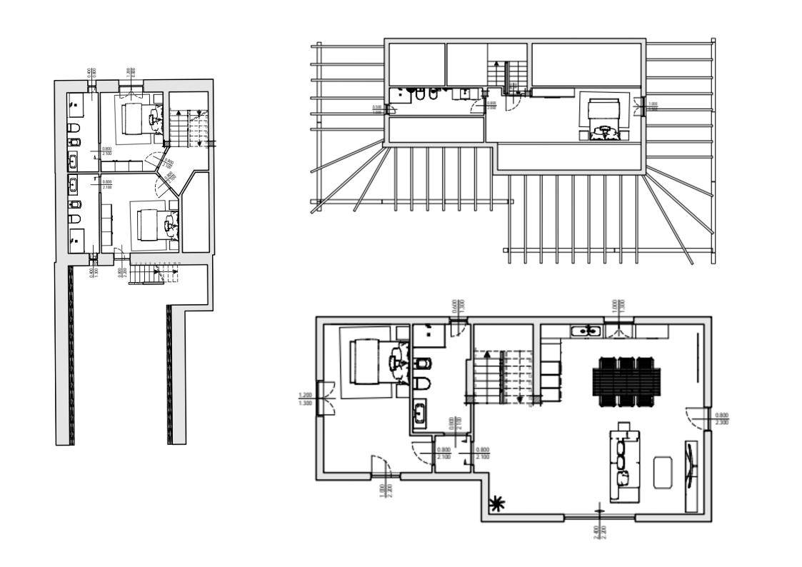
La Villa, di 180 mq circa, è finemente arredata e dotata di tutti i comfort; un open space con cucina e soggiorno, 4 camere matrimoniali tutte con bagno privato, lavanderia e dispensa separate e ampissime verande.
Contattaci
Vallebona Real Estate srl
Corso Battellieri n. 4
Carloforte (Sud Sardegna)
Telefono 0781.854796
Cellulare 346.9465092
info@vallebonarealestate.it
Immobili simili
Ultimo aggiornamento 30-09-2025






















