Appartamento in Vendita a Carloforte
Zona: Carloforte Paese/City centre
Classe energetica
EP glnr: 149.07 kwh/m²
Tipologia: Appartamento ristrutturato e arredato in centro storico.
Localizzazione: Carloforte, Isola di San Pietro, sud-ovest della Sardegna.
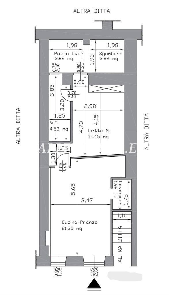
Appartamento al piano terra di circa 60 metri quadrati, in pieno centro storico, arredato con cura e attenzione ai dettagli, rendendo gli spazi accoglienti e funzionali e completamente ristrutturato , composto da ampio soggiorno / pranzo con cucina a vista, piccola lavanderia, camera da letto matrimoniale con bagno e spazioso cortile interno.
Grazie alla sua posizione centrale, a pochi passi dal lungomare, l'Appartamento offre la possibilità di vivere il fascino di Carloforte e rappresenta un ottima opportunità di investimento per affitti brevi.
Contattaci
Vallebona Real Estate srl
Corso Battellieri n. 4
Carloforte (Sud Sardegna)
Telefono 0781.854796
Cellulare 346.9465092
info@vallebonarealestate.it
Immobili simili
Ultimo aggiornamento 26-11-2025














