Appartamento in Vendita a Carloforte
Zona: Carloforte Paese/City centre
TIPOLOGIA: Appartamento in centro storico
LOCALIZZAZIONE: Carloforte, Isola di San Pietro, sud-ovest della Sardegna
DESCRIZIONE: Nel cuore autentico di Carloforte, a pochi passi dal porto e da tutti i principali servizi, proponiamo un Appartamento dal grande fascino, situato al primo piano di una palazzina storica di poche unità, posizionata ad angolo e quindi caratterizzata da una doppia esposizione che garantisce ambienti particolarmente luminosi e ariosi durante tutto l’arco della giornata.
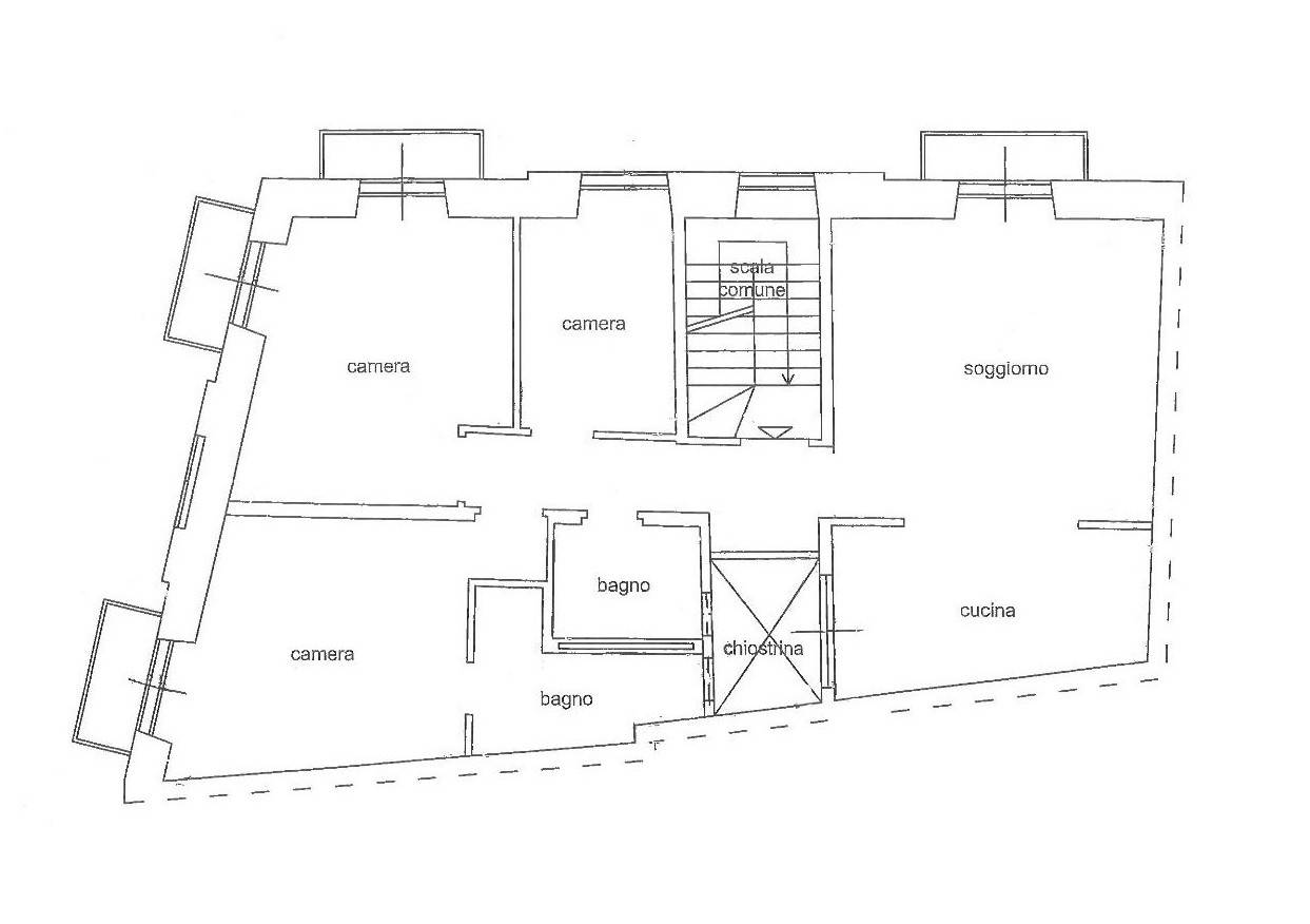
L’immobile, di circa 108 mq, si sviluppa su un unico livello ed è caratterizzato da spazi regolari e perfettamente distribuiti. L’ingresso conduce alla zona giorno, dove cucina e soggiorno si fondono in un unico ambiente ampio e accogliente, ideale per vivere e condividere gli spazi; in questa zona è presente anche un bagno e una piccola verandina coperta, utile come pratico sfogo esterno.
La zona notte offre tre camere da letto ben distinte: una camera matrimoniale molto ampia con bagno privato, una seconda camera ad angolo con doppia esposizione che regala una splendida luminosità naturale, e una terza stanza più raccolta, perfetta come studio, cameretta o stanza ospiti.
L’Appartamento combina il fascino tipico delle case carlofortine con spazi funzionali e grande potenziale, rappresentando una soluzione immediatamente godibile ma allo stesso tempo facilmente valorizzabile.
La posizione, la luminosità e la distribuzione interna rendono questa proprietà una proposta estremamente interessante sia come abitazione principale sia come investimento di qualità.
Una soluzione rara nel cuore del paese.
Contattaci
Vallebona Real Estate srl
Corso Battellieri n. 4
Carloforte (Sud Sardegna)
Telefono 0781.854796
Cellulare 346.9465092
info@vallebonarealestate.it
Immobili simili
Ultimo aggiornamento 27-01-2026























